2018
2018

Brickworks Mixed-Use, Shenton Park WA

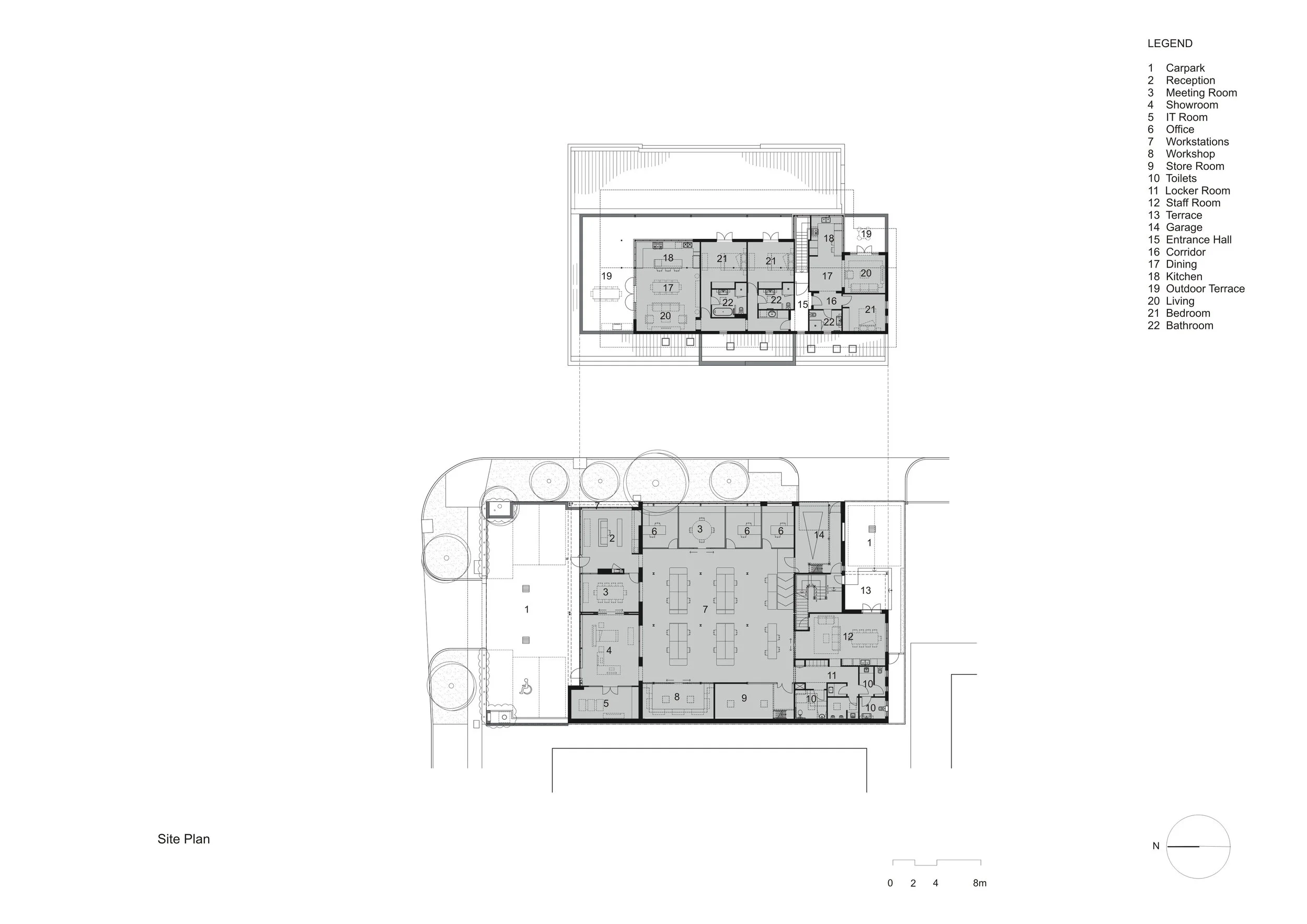
Rauland Australia's new Perth Headquarters is a re-purposed post-war red brick industrial warehouse integrating a modern office space with apartments. Rauland provide integrated communication solutions for their healthcare clients. The inclusion of residential apartments enhances the integration with the local community.

Client Rauland Australia Pty Ltd Landscape Architect Alfalfa Landscape Structural Engineer Terpkos Engineering Services Engineers Wood + Grieve Building Surveyor Paul Finucane Builder Minchin + Sims

Onslow20180319_8905_loresA.jpg
Onslow  20180312_6981F_lores.jpg
Onslow  20180312_7104B_lores.jpg
Onslow  20180312_7001_lores.jpg
Onslow  20180312_7072B_lores.jpg
Onslow  20180312_7088B_lores.jpg
Onslow  20180312_7063B_lores.jpg
Onslow  20180312_7096_lores.jpg
Onslow  20180312_7085B_lores.jpg
Onslow  20180312_7099_lores.jpg
Onslow20180320_9007B_lores.jpg
Onslow20180320_8945_lores.jpg
Onslow20180320_9015B_lores.jpg
Onslow20180320_8926_lores.jpg
Onslow20180320_9026_lores.jpg
Onslow20180320_9030_loresA.jpg
Onslow20180320_9044_lores.jpg
Onslow20180320_8992_lores.jpg
onslow plans.jpg
onslow sections.jpg
onslow site plan.jpg
 Photos © Acorn Photo

Photos © Acorn Photo