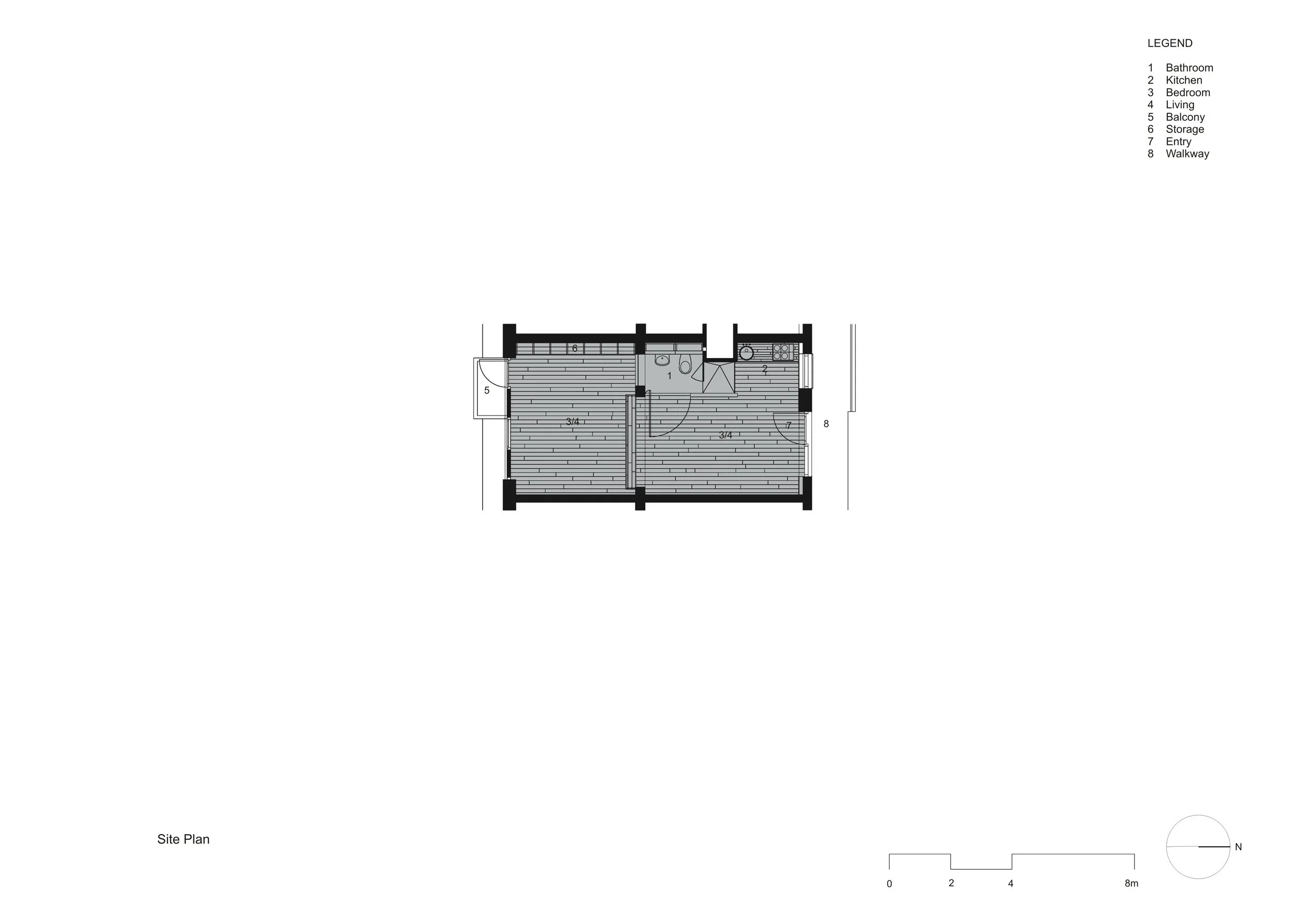
Flat
Cottesloe, WA
2006
Flat, Cottesloe WA
A modest low budget conversion of a 1960's Krantz + Sheldon designed bedsit apartment into a contemporary home for a young couple in Cottesloe Western Australia
Client Andrew + Erika Hagemann Structural Engineer Scott & Associates Builder Owner Builder
Category Alterations + Additions Type Single Storey, 1 x Bed, 1 x Bath Zoning R60 Apartment Size 42 sqm Build Cost $35K
Awards 2006 Australian Institute of Architects WA Chapter Architecture Award Archicentre Category
Photos © Acorn Photo
PrevNext
