Claremont, WA
Terrace House, Claremont WA
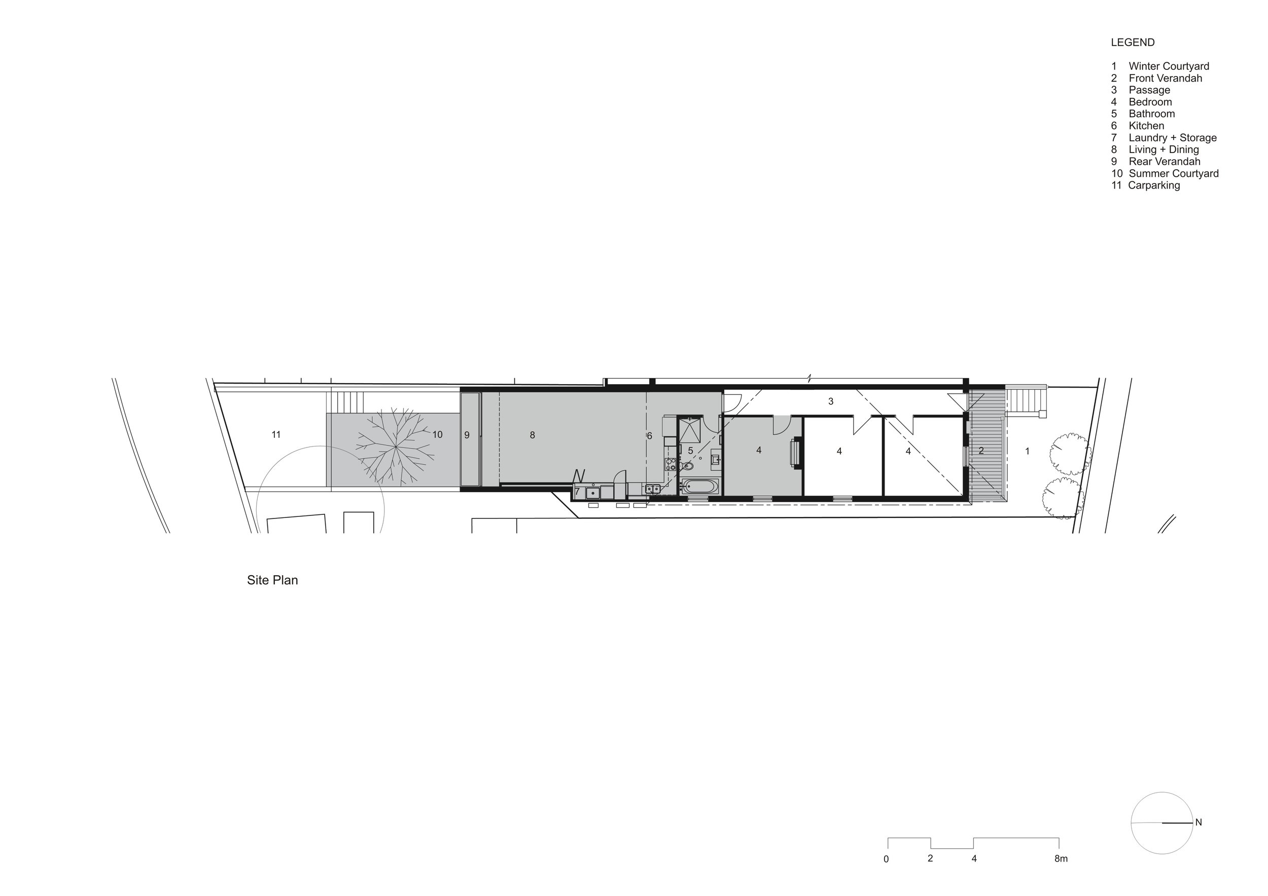
A contemporary alteration and addition of a heritage listed Victorian Era Terrace House for a young professional couple with a single child. Abundant use of space and natural light formed the basis for the design overlaid with the clients clear design + contemporary furniture aesthetic.
Client Scot + Clare Griffin Structural Engineer Scott & Associates Builder John Wigham
Category Alterations + Additions Type Single Storey, 3 x Bed, 1 x Bath Zoning R40 Lot Size 228 sqm House Size 135 sqm Build Cost $300K
Awards 2009 Australian Institute of Architects WA Chapter Commendation for Small Project Architecture
Scot + Clare Griffin, Claremont
“As a young married couple our first house was a charming but dilapidated semi in Claremont. While the house had some original character features the rear of house consisted of a dark, badly designed lean-to which closed off the kitchen and living area to the garden. Being a semi the house had limited light and a tight footprint.
We engaged Andrew who immediately saw the potential that we felt the house had and he was able to find creative solutions to sort out the flow, maximise the space and fill it with natural light. He created a simple, elegant modern extension which elevated the character features of the original house. The south facing four meter long skylight above the rear doors drew in natural light; sun and moon, that infused the new rear space comprising of a kitchen, dining and living room giving it a calm and serene feel.
Through a very consultative process Andrew listened and understood our overall requirements and budget for the house but more importantly for us the particular design aesthetic we wanted to achieve. Andrew achieved over and above on both to deliver a plan and a finish that well exceeded our expectations. We were so pleased to be able to bring new life and beauty into a house that had been unloved for so long and we are still so proud that it will be here for many more years now as an amazing place to live”.
Photos © Acorn Photo
