Shared House
Shared House

Claremont, WA

Alfred20171002_9619.jpg

Alfred20171002_9583_lores.jpg
2010
2010

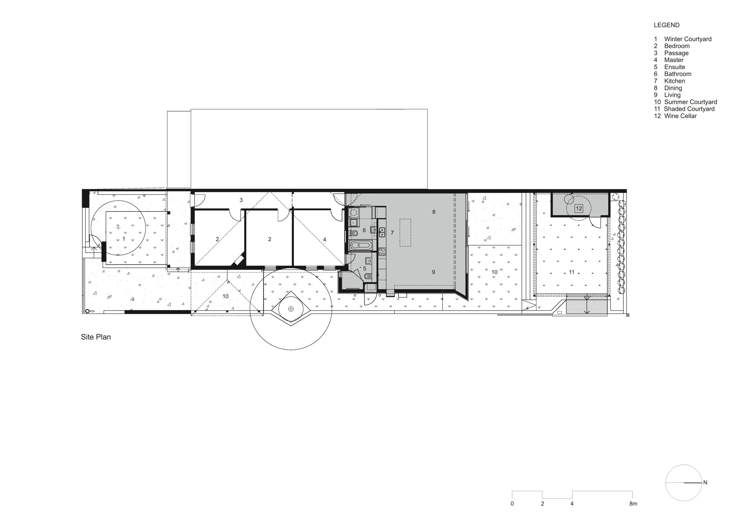
Shared House, Claremont WA

An alteration + addition to a heritage listed semi-detached house for a growing family. The design responds to the need to future proof the family’s growing accommodation needs by allowing for the house to be expanded in two stages with a rear addition and roof space loft.

Client Andrew + Erika Hagemann Structural Engineer Scott & Associates Builder Owner Builder + John Wigham

Category Alterations + Additions Type Single Storey, 3 x Bed, 2 x Bath Zoning R30 Lot Size 362 sqm House Size 230 sqm Build Cost $450K

Alfred20171002_9521F.jpg
Alfred20171002_9519_lores.jpg
Alfred20171002_9529_lores.jpg
Alfred20171002_9537A_lores.jpg
Alfred20171002_9548_lores.jpg
Alfred20171002_9555_lores.jpg
Alfred20171002_9597_lores.jpg
PLAN_2.jpg
Alfred20171002_9590.jpg
alfred5.jpg
 Photos © Acorn Photo

Photos © Acorn Photo