Perth, WA
Town House, Perth WA
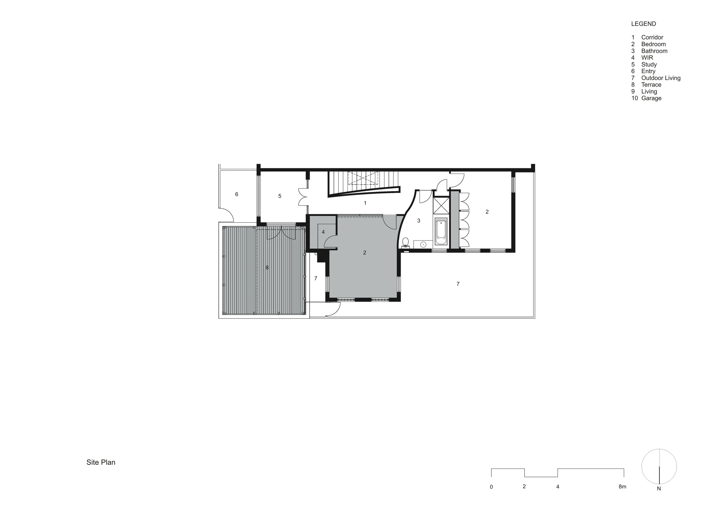
A near city townhouse conversion that creates a private outdoor room over an existing garage. Other improvements included filling in a void space to create a new Master Bedroom and a more intimate living space below
Client Gary Giles + Stuart Pekin Structural Engineer Scott & Associates Builder ###
Category Alterations + Additions Type Two Storey, 2 x Bed, 2 x Bath Zoning R60 Lot Size 175 sqm House Size 233 sqm Build Cost $180K
Awards 2007 Australian Institute of Architects WA Chapter Commendation for Small Project Architecture
Gary Giles and Stuart Pekin, North Perth
“We have now been in our home for twenty years and have truly enjoyed the additional details that make the property the perfect Inner City oasis.
The original building was built in 1998 which we purchased in 2002. The plain facades of the building reflect the original Greek designer’s approach, masculine and minimal with mediterranean styled parapet walls, suiting us well.
The superb results included a combination of the essential base framework of the two storey duplex, our briefing of elements we wanted included, and Andrew’s great architectural skills responding to the challenges. The detailing of the beautiful new terrace and its balustrade is superb, along with the integration of the electronically operated canopy. All was done very well.
Andrew is always delightful, diligent and collaborative. We can highly recommend him for all of his abilities and his wonderful demeanour.”
Photos © Acorn Photo
